ABOUT OUR DESIGN-BUILD SERVICES
Our Story
Sustainable Design Build (SDB) is a full-service design-build firm in Denver, specializing in both residential and commercial construction. Our story began with a commitment to providing high-quality craftsmanship in every project with integrity and a pursuit of excellence. Founded in 2017, SDB began as a multi-family construction company, building townhomes for the surrounding Denver neighborhoods. Eventually, our company’s focus shifted towards helping individual families and homeowners build their dream home. With our cumulative knowledge of Denver’s Community Planning and Development processes and seasoned construction know-how, clients who work with us are guaranteed a home built on integrity and backed by years of expertise.
SDB offers a comprehensive range of services, including pre-construction, design, and full-scope construction for whole home remodeling, additions, custom homes, and more. Our unique approach integrates design and construction under one roof as GC-Led Design-Build Firm, ensuring streamlined communication and efficient project management. Our team at SDB has navigated numerous projects and identified areas where homeowners can benefit the most from a professional guiding hand. This enables SDB to deliver tailored solutions that meet clients’ specific needs and goals.
Residential Construction Services
What sets us apart from a run-of-the-mill general contractors in the Denver Metro area is our classic home full-service approach to your project. Allowing us to provide designs, consulting, and construction services all under one roof. Our services include remodeling & restoration, full home renovations, kitchens, bathrooms, additions, pop tops, basements, and ADUs.
Return on Investment
Sustainable Design Build will help you maximize your ROI and always seeks to complete projects that are of the best benefit to you! With competitive pricing, we make sure you are getting the best value for your home improvement project. This also includes professional advice, to help our clients discern which projects will produce the best overall return on investment.
Construction Solution
With a turn-key construction solution to the residential services process, we aim to provide a stress-free solution to your home improvement project. We have meticulously picked out trade partners to ensure every client receives the highest quality craftsmanship and finishes.
Financing
Financing a home project can pose unique challenges as there are several different lending products available. Our team of professionals can assist you in building a funding solution to make your project a reality. Our partners will work with you directly to provide the best option for your project.
Company News
We are moving fast. Here are our latest company updates.
How Denver’s New Broncos Stadium District Signals a Shift in Local Development
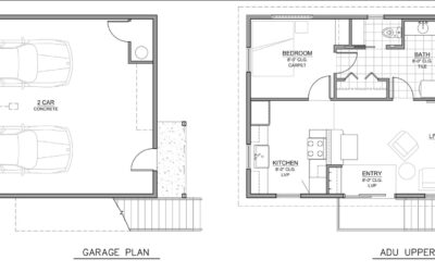
Converting a garage ADU is one of the most efficient ways to add rental income or additional living space to a property. Garage ADU projects typically cost $100,000 to $150,000+, take 5 to 9 months, and require zoning approval, structural upgrades, and building permits. When completed properly, a garage ADU can significantly increase property value while maintaining the existing building footprint.
Why Working With an In-House Architect Matters: The Design-Build Advantage in Denver
Working with an in-house architect through a design-build firm streamlines communication, aligns budget with design, and improves project efficiency from concept to construction.
Why Denver’s Short Term Rental Crackdown Is Shaping Smarter ADU Home Investments
Denver’s recent enforcement on short-term rental permits for accessory dwelling units (ADUs) highlights a key reality. Homeowners benefit most from ADUs when they are properly designed, permitted, and built for long-term flexibility. While short-term rental potential exists, the true value of an ADU lies in multigenerational living, passive income, and future property adaptability.
Recent Projects
We at Sustainable Design Build hold our work to the highest standard of integrity and workmanship. Please take a look at some of our recently constructed projects. You are more than welcome to visit our various platforms holding clientele reviews about our work. We are a verified business with Google, BBB, and HomeAdvisor. We work together with trade partners that meet our high standards and values for delivering valuable service.
LOCALLY OWNED AND OPERATED
Sustainable Design Build offers servcies to all the Denver Metro Neighborhooods. Our office located in South Broadway area of Denver.
Connect With Us
Planning your next renovation, or maybe you are looking to do a complete remodel for your home? Whatever the task, it can’t hurt to ask. Reach out to our team through this form.
We can schedule a free consultation and discuss everything you need to get your project moving in the right direction. Did we mention, it’s absolutely free?
No time like the present to get started on turning your house into the home of your dreams.


