ADU Denver cost breakdown for 2026. Learn pricing, factors, and what impacts ADU construction costs in Denver

Sustainable Design Build working on a Denver ADU project.

It takes about 9-18 months to build an ADU in Denver.

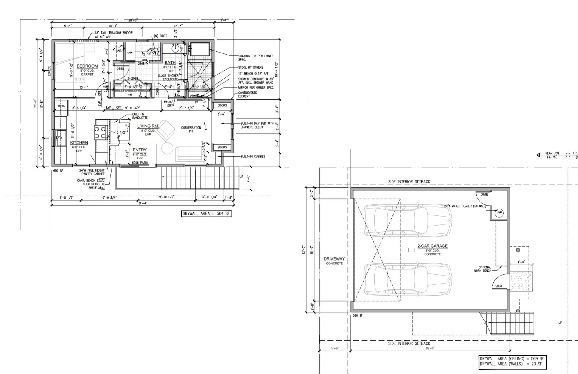
Sustainable Design Build - Denver ADU Builder - ADU Example Floor Plan Layout With Details

This takes into consideration all phases of the ADU construction project including; designing, permitting, construction, and final inspection.Sustainable Design Build has been a leader in building an ADU here in Denver for nearly a decade now. For Denver and the surrounding Metro Areas, an Accessory Dwelling Unit takes 9 – 18 months to complete.

Building an Accessory Dwelling Unit can be a deceivingly large undertaking for a homeowner. Oftentimes, when people consider building a smaller home in the rear of their property lot they think it will be an easier task based on the size of the footprint. However, the reality is that these ADUs are essentially miniature custom home construction projects. Complete with foundations, underground plumbing, up to code electricity, and high insulation energy ratings. All of which can be boasted as a benefit for such a sustainable and efficient construction but still highlights just how much planning, designing, and work goes into building an ADU.

With our experience and expertise, Sustainable Design Build can break down the various stages of building an ADU, explore the potential delays and roadblocks, and provide insight to homeowners and anyone interested in building an ADU for their property.

How Long Does It Take To Design an ADU?

The process of designing an ADU can take up to 2 to 3 months. The very first step a homeowner can take is partnering with a Design Build like Sustainable Design Build to begin the designing of an ADU. While the complexity of the Accessory Dwelling Unit greatly affects the turnaround time for a completed design – homeowners can expect floorplans, elevations, architectural and structural plans prepared and ready to process for permitting. Typical key steps of the design process are:

 

  • Consultation and Initial Site Visit
  • Feasibility Study
  • Plan Drafting
  • Plan revisions

 

What is a Concept vs a Design

There are many ways for homeowners to get started on this process whether it is through traditional construction methods or others. Sustainable Design Build often found homeowners would reach out to Architects or General Contractors to get started on designs with full commitment but when they were ready to move forward with construction would find themselves over-budget or restricted by zoning regulations and local municipality building codes. Effectively, leaving homeowners with a burning hole in their wallet and no actionable plans to speak of.

 

Sustainable Design Build answers that approach by working with clients on a concept of their proposed Accessory Dwelling Unit first. This is a primer instead of completely sending in for a full design phase or design package like many traditional builders or architects sell first. Our architects and general contractor will do exploratory research around the property zoning, elevations, and lot size. This allows SDB and the homeowner to explore what is really possible for their property. SDB will give homeowners real and accurate pricing that is tethered to actionable permit -ready floor plans for lower upfront cost and faster delivery. 

 

A concept phase before design gives homeowners a more transparent view into their possibilities without the risk of a fully committed design phase. And even better, if the concept is perfect, homeowners can continue on with SDB to full design without worry of complete overhauls and changes to the proposed ADU! Meaning no surprised budget changes or project-ending twists.

How long does it take to get a Building Permit For An ADU?

Permitting oftentimes is the most time consuming phase of any project, especially in Denver, where permit times far exceeded a year in the past. Fortunately, that has changed with recent regulations and new departments for neighborhood development. Still, as a homeowner looking to build an ADU you can expect the permitting process to be about 3 to 9 months. The duration depends on the home’s local municipality, project size, and other factors like city plan reviewers.

With Sustainable Design Build part of the process will already be under way as the concept phase will have created a head start. Time is money and savings, so homeowners should consider the benefits of working with a true Design-Build Firm like Sustainable Design Build which offers all services necessary to building an ADU in-house. A streamlined concept to design to permitting because all resources for architecture, structural, building code and interior design are under one roof.

Sustainable Design Build Denver Bungalow Pop Top Addition Framing 3035 W 25th Ave

How long does it take to build an ADU during construction?

The construction phase actually can be one of the faster timelines in the ADU building project. The construction phase typically can be around 4 to 6 months. Again the size and complexity of the project matter but since these are ADUs, final inspection is much closer than say a whole home remodel and pop top addition. However, despite the speed of construction SDB’s crews operate at, homeowners will experience the same streamlined services all under one point of contact. Less chances for unforeseen problems and more focus on enjoying the journey of building a brand new home right in your backyard.

Here is a clean continuation you can place at the end of your article, keeping your tone and structure consistent while strengthening SEO and positioning SDB effectively:

Common Delays in an ADU Build (and How to Avoid Them)

While most ADU projects follow a predictable timeline, there are several common delays that homeowners should be aware of. Understanding these can help set realistic expectations and, more importantly, highlight the value of working with a true design-build firm.

One of the most frequent delays comes from zoning and code compliance issues. Many homeowners begin with plans that simply are not feasible for their lot due to setbacks, height restrictions, or parking requirements. Without early due diligence, this can result in major redesigns and lost time.

Another common delay is incomplete or incorrect permit submissions. When architectural plans, engineering details, or site information are missing or inconsistent, city reviewers will issue corrections, adding weeks or even months to the permitting timeline.

Design revisions mid-process can also significantly extend timelines. This often happens when homeowners commit to full design before understanding costs, leading to redesigns after budgeting realities set in.

During construction, delays can stem from material lead times, trade scheduling conflicts, or unforeseen site conditions such as soil issues or utility complications.

This is where Sustainable Design Build’s approach stands apart. By operating as a fully integrated design-build firm, SDB mitigates many of these delays before they ever become problems. The concept phase ensures feasibility and cost alignment early, reducing redesign risk. In-house coordination between architecture, engineering, and construction eliminates communication gaps that often slow projects down. And with a single point of contact managing the entire process, scheduling remains streamlined and predictable.

Instead of reacting to delays, SDB’s process is built to prevent them.

Final Thoughts: How Long Does It Take to Build an ADU in Denver?

For homeowners asking, “how long does it take to build an ADU in Denver,” the realistic timeline is 9 to 18 months from concept to completion. This includes design, permitting, and construction, all of which play critical roles in the overall schedule.

While timelines can vary depending on property conditions, project complexity, and city review processes, working with an experienced design-build firm like Sustainable Design Build can significantly reduce uncertainty and avoidable delays. By streamlining each phase and aligning design, budget, and construction from the beginning, homeowners gain a clearer path to completion.

In a market like Denver, where zoning regulations and permitting timelines can be complex, having the right team in place is the difference between a drawn-out process and a well-managed, efficient build. For those planning an ADU, understanding the full timeline and choosing the right partner are the most important first steps.

Connect With Us

Planning your next renovation, or maybe you are looking to do a complete remodel for your home? Whatever the task, it can’t hurt to ask. Reach out to our team through this form.

We can schedule a free consultation and discuss everything you need to get your project moving in the right direction. Did we mention, it’s absolutely free?